新聞資訊
新聞資訊
- 精心設計的消防系統在高層建筑火災面前為什么會失靈
- 香港思考|施工場景火災風險警示!臨時無線方案筑牢安全屏障
- 電影院、禮堂、劇場、體育館等場所觀眾廳的疏散門要求
- 《江西省消防技術標準疑難問題解答》中,關于安全疏散的內容
- 變電站設備房間都要設置氣體滅火系統?
- 消防維保檢測出虛假報告,追責時間期限是多久
- 室外樓梯代替防煙樓梯:可行性、利弊與實施建議
- 前室的可開啟外窗面積指的是窗的面積還是開啟后的有效面積?
- 地面疏散誘導燈的選材
- 捋順疏散走道和疏散通道,拿下疏散走道最小凈寬度要求
聯系我們
廠家:智淼消防檢測設備廠家
手機:18910580194,15262554119
電話:4006-598-119
郵箱:18751140119@163.com
地址:江蘇省蘇州市常熟市黃河路275號城市之星119室
行業動態
檢測小尺寸公差——塞規、氣動量儀、電子測量
- 作者:消防檢測設備
- 發布時間:2020-11-06 07:15:56
- 來源:http://www.123yhq.com/
- 點擊:524
在小孔徑小公差的檢測中(主要是H7級公差及以下)的檢測,常見的方式是采用塞規檢測。但這類塞規由于設計公差范圍較小,加工難度大,無法讀取準確的數值,計量檢測無法保證,在其不能滿足檢測需要的情況下,新的檢測手段應該如何選擇呢?
PART
01
當前檢測方法分析
以孔徑(φ6~φ30)的H7級公差為例計算的塞規尺寸如表所示。目前采用塞規檢測方法主要存在的弊端包括:

塞規制作成本高
根據工具車間和同行業的數據分析,只有塞規的公差大于0.003 mm時,塞規才能保證95%以上的產品合格率;當小于0.0015mm時,只能保證33%的合格率;當小于0.0025mm且大于0.0015mm時,只能保證67%的合格率。
使用成本高
通端的下差和磨損極限的差值即為磨損量,磨損量越小,塞規的使用壽命越短。
計量困難
根據計量室反饋,由于設計公差范圍太小,約在0.014mm左右,加工難度大,無法讀取準確的數值,計量檢測無法保證,驗收合格率低。
產品加工困難
因為塞規吃掉了產品要求公差的一部分公差,導致產品加工時壓縮到產品圖要求尺寸的中差,因而對加工的要求也相應提高了(見圖1)。

圖1 塞規的原理結構
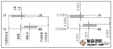
以殼體類零件經常使用的工藝銷子孔φ11H7為例,根據《塞規、卡板的計算程序》計算所得(見圖2),計算產品被壓縮之后的:

圖2 φ11H7塞規的計算
PART
02
解決方案分析
針對以上原因,提出以下幾種方案供參考使用:
方案一:加大塞規的設計公差
針對制造和檢驗提出的問題,可以加大通端和止端的設計公差為0.003mm,保證90%以上的成品率;加大磨損量到0.003mm,增加檢具的磨損量(見圖3)。

圖3
同樣以φ11H7為例,產品被壓縮之后的實際要求尺寸Sj=0.009mm。即對產品圖的要求尺寸更加嚴格了,公差為原先的一半,產品圖要求的φ11H7在機加工過程中要控制在φ11H5級,導致加工難度增加,因誤判導致的產品合格率降低。
方案二:使用氣動量儀
氣動量儀因其與塞規相比能精確讀數、成本低,同時還能檢測內孔的圓度、錐度,兩孔中心距、同軸度、垂直度等而在小公差尺寸檢測的應用上越來越廣泛。

因氣動量儀使用時要求安裝在沒有振動的工作臺上,以保證浮標能自由的上下移動,不與玻璃管壁相碰,而且沒有顯著的擺動現象。測工件時,把工件水平平穩地放在工作臺上,測頭校準之后插入孔內,量儀示值為內徑;旋轉測頭一周量儀示值差為圓度;測頭在孔內上下移動一定距離可測量孔是否有錐度,通過三角函數換算可得到錐度值。
因為測量時要求工件水平平穩地放在工作臺上,而殼體類零件有一部分尤其是大殼產品體積龐大、質量重,則要求工作臺一定要足夠大,同時有移動設備。很明顯該類檢具不適合大的殼體類檢測。
方案三:使用電子塞規
電子塞規是近年發展起來可替代氣動量儀和塞規的高效孔徑測量儀器。電子塞規由電子塞規本體和電子測微顯示儀組成。電子塞規的傳感器一般采用開啟式差動變壓器原理,這種結構特點是測量范圍寬,可達1~2mm。電子塞規本體由塞規體、專用導套和硬質合金側頭等組成。與塞規配套的電子放大器一般選用模擬放大電路和向敏檢波器等組成。

圖4 電子塞規

圖5 電子塞規小尺寸
電子塞規精度高,綜合測量誤差小于0.001mm,穩定、可靠、耐用,可在生產車間常溫條件下長時間使用,它完全可以替代塞規、三爪內徑千分尺及內徑量表等測孔檢具,可快速、方便地測量通孔的直徑、橢圓度和錐度。

圖6 上下限環規
電子塞規采用兩個硬質合金測頭進行接觸測量,測力小、耐磨性好。測頭安裝具有自鎖功能,安裝調整方便。一般情況下,按用戶的訂貨要求設計專用導套,專用的導套保證了測量時的間隙、導向和定心,測量的孔徑準確、客觀和快速。圖4、圖5分別是大小不一樣的電子塞規結構圖。尾線部分連接測量的顯示儀器,每個都配有兩個上下限環規(見圖6),圖7是快換測頭。

圖7 快換側頭
使用時,測量時電子塞規測頭應處在導套直徑方向上,若導套直徑偏離測頭軸線方向,則測量的是弦而不是工件的直徑,如圖8所示。其產生的偏心誤差可用下式表示:

圖8
綜合以上分析,對于單個小公差孔徑尤其H7級及以下的,對于殼體類的檢測建議像取力器這樣的小件可以用氣動量儀檢測,這樣成本相對較低,比塞規更適合;而像大殼、離殼等大件殼體類零件使用OD規檢測更方便快捷。
標簽:
- 上一篇:測量準確度與測量儀器準確度
- 下一篇:如何對磁探設備進行預防性維護




















蘇公網安備32058102002149號
客服QQ