新聞資訊
新聞資訊
- 精心設計的消防系統在高層建筑火災面前為什么會失靈
- 香港思考|施工場景火災風險警示!臨時無線方案筑牢安全屏障
- 電影院、禮堂、劇場、體育館等場所觀眾廳的疏散門要求
- 《江西省消防技術標準疑難問題解答》中,關于安全疏散的內容
- 變電站設備房間都要設置氣體滅火系統?
- 消防維保檢測出虛假報告,追責時間期限是多久
- 室外樓梯代替防煙樓梯:可行性、利弊與實施建議
- 前室的可開啟外窗面積指的是窗的面積還是開啟后的有效面積?
- 地面疏散誘導燈的選材
- 捋順疏散走道和疏散通道,拿下疏散走道最小凈寬度要求
聯系我們
廠家:智淼消防檢測設備廠家
手機:18910580194,15262554119
電話:4006-598-119
郵箱:18751140119@163.com
地址:江蘇省蘇州市常熟市黃河路275號城市之星119室
行業動態
管網式七氟丙烷氣體滅火系統設計步驟
- 作者:消防檢測設備
- 發布時間:2021-06-19 02:50:52
- 來源:http://www.123yhq.com/
- 點擊:607
管網式七氟
丙烷
滅火系統
設計步驟

管網七氟丙烷滅火系統由七氟丙烷滅火設備、管網、氣體滅火控制器、火災探測器、聲光報警器、放氣指示燈、緊急啟停按鈕、外設電源等組成。用于保護經常有人的場所和高精密電子儀器、通訊設備和其它高價值的財產和重要場所,適用于撲救A、 B、C類和E類電氣火災,如通訊機房、高低壓配電室、檔案室、儲能集裝箱、工業清洗設備、危險品倉庫等易燃易爆場所。
確定設計濃度,防護區層高和防護區個數
1、查看圖紙設計說明,圖紙氣體滅火部分(平面圖)防護區個數,層高。
2、圖紙未查找到層高,設計濃度等技術參數時,需與客戶溝通確定。(計算機房、服務器機房等場所設計濃度選擇 8%,柴油發電機房、變配電室設計濃度選擇 9%,檔案室設計濃度選擇 10%)。
1、采用氣體滅火系統保護的防護區,其滅火設計用量或惰化設計用量,應根據防護區內可燃物相應的滅火設計濃度或惰化設計濃度經計算確定。
2、有爆炸危險的氣體、液體類火災的防護區,應采用惰化設計濃度;無爆炸危險的氣體、液體類火災和固體類火災的防護區,應采用滅火設計濃度;幾種可燃物共存或混合時,滅火設計濃度或惰化設計濃度,應按其中最大的滅火設計濃度或惰化設計濃度確定。
3、兩個或兩個以上的防護區采用組合分配系統時,一個組合分配系統所保護的防護區不應超過 8 個;組合分配系統的滅火劑儲存量,應按儲存量最大的防護區確定;滅火系統的滅火劑儲存量,應為防護區的滅火設計用量與儲存容器內的滅火劑剩余量和管網內的滅火劑剩余量之和。
4、滅火系統的設計溫度,應采用 20℃。
5、同一集流管上的儲存容器,其規格、充壓壓力和充裝量應相同。
6、同一防護區,當設計兩套或三套管網時,集流管可分別設置,系統啟動裝置必須共用;各管網上噴頭流量均應按同一滅火設計濃度、同一噴放時間進行設計;管網式不應采用四通管件進行分流。
7、噴頭的保護高度和保護半徑,應符合下列規定:
最大保護高度不宜大于6.5m,最小保護高度不應小于0.3m;噴頭安裝高度小于1.5m時,保護半徑不宜大于4.5m;噴頭安裝高度不小于1.5m時,保護半徑不應大于7.5m。
8、防護區劃分應符合下列規定:
防護區宜以單個封閉空間劃分;同一區間的吊頂層和地板下需同時保護時,可合為一個防護區;
采用管網滅火系統時,一個防護區的面積不宜大于800平方米,且容積不宜大于3600立方米;采用預置滅火系統時,一個防護區的面積不宜大于 500平方米,且容積不宜大于 1600立方米。
9、防護區應設置泄壓口,七氟丙烷滅火系統的泄壓口應位于防護區凈高的 2/3 以上。宜設在外墻上。泄壓口面積按柜式氣體滅火系統計算模板進行選型。
10、七氟丙烷滅火系統的滅火設計濃度不應小于滅火濃度的 1.3 倍,惰化設計濃度不應小于惰化濃度的 1.1 倍。
由于不同場景的實際空間情況不一樣,因此需要在項目開展前進行相應數據的計算,主要包括了滅火劑用量計算以及壓力損失計算。
根據流量決定管徑(若最后噴頭壓力達不到標準,可適當增加管徑;若最后管徑增大還不滿足噴頭工作壓力要求時,可減少藥劑每瓶充裝量來增大鋼瓶壓力)。
防護區滅火設計用量計算完成后,需要確定每個防護區的實際用量。
確定滅火劑瓶組規格、數量,每瓶充裝量;確定鋼瓶間位置,能否放得下鋼瓶。
根據防護區數量,是否采用選擇閥,當防護區的數量≥2 時,應采用選擇閥,一個系統防護區≤8 個,每個防護區根據集流管的通徑大小選擇規格相符的選擇閥。
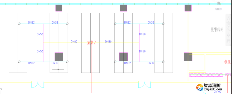
根據防護區和鋼瓶間形狀及鋼瓶數量,初步進行防護區的噴嘴數量和分布位置的確定,要對稱均勻分布。預先估計選擇噴嘴的型號和數量,噴嘴型號決定最細管路的大小。最后當壓力損失計算完成后,計算規定時間內, 噴頭能否將藥劑噴完。分布管路走勢時,注意鋼瓶間與防護區的相對位置關系和防護區形狀。注意:(鋼瓶間與防護區所在樓層關系,相對距離等)。

管網式不應采用四通管件進行分流;根據繪制的草圖,確定管徑管長, 每一次分流,管徑要有序降低,不能一次過大,如:從管徑 100mm 直接降至32mm,可以 100—80—65—40—32 或 100—65—40—32,末端管徑大小根據所選噴嘴通徑選擇,壓力損失計算選擇距離選擇閥最遠的噴嘴所在管路路線。

管路計算說明:

集流管:{A(紅)+B(藍)+C(黑)組成}
A 部分(紅):由瓶組數決定,長度:所需鋼瓶數量*0.5m。
B 部分(藍):由瓶組架決定,長度:可固定為1m
C 部分(黑):取決于驅動瓶數,長度:驅動瓶數量*0.5m。
D 部分(紫):是選擇閥到噴嘴所在房頂的高度,選擇閥距地面約800mm,根據鋼瓶間高度和防護區的相對位置關系可得到4部分長度。
如上表集流管計算:鋼瓶數量*0.5m+1m+驅動瓶數量*0.5m=9*0.5+1+3*0.5=7m

圖紙上鋼瓶間鋼瓶,驅動瓶擺放。
70/90/120/鋼瓶直徑364mm, 150/180 鋼瓶直徑400mm;瓶組布置排列時
70/90/120/鋼瓶中心距440mm,150/180 鋼瓶中心距490mm。
根據選擇閥大小,選擇閥在通徑80及以下,各選擇閥中心之間可預留約300mm,通徑80以上的,中心距可預留約450mm。
當管路降低管徑分流時,在模板中應根據管徑順序填寫通徑、管數、管長。如管路,直到距離選擇閥最遠的噴嘴。計算管長時,末端連接噴嘴處應有彎頭,長度可估算500mm。
核查設計。
填寫高度差值;觀察噴頭工作壓力是否滿足要求,且大于過程中點壓力的一半,如果是則滿足要求。
設計立體圖,完善圖紙。
畫出從選擇閥出去到防護區的管路分布圖(示意圖);根據設計的平面圖紙標出管徑大小,對氣瓶間的鋼瓶擺放進行核查;填寫管網設計技術參數并完善材料表


標簽:
- 上一篇:機房消防系統講解
- 下一篇:建筑電氣防火設計中的難點問題




















蘇公網安備32058102002149號
客服QQ