新聞資訊
新聞資訊
- 電影院、禮堂、劇場、體育館等場所觀眾廳的疏散門要求
- 《江西省消防技術標準疑難問題解答》中,關于安全疏散的內容
- 變電站設備房間都要設置氣體滅火系統?
- 消防維保檢測出虛假報告,追責時間期限是多久
- 室外樓梯代替防煙樓梯:可行性、利弊與實施建議
- 前室的可開啟外窗面積指的是窗的面積還是開啟后的有效面積?
- 地面疏散誘導燈的選材
- 捋順疏散走道和疏散通道,拿下疏散走道最小凈寬度要求
- 穩壓罐壓力調節的必要性與合適壓力值的探討
- 鋼結構室外敞開連廊是否需要噴涂防火涂料的探討
聯系我們
廠家:智淼消防檢測設備廠家
手機:18910580194,15262554119
電話:4006-598-119
郵箱:18751140119@163.com
地址:江蘇省蘇州市常熟市黃河路275號城市之星119室
行業動態
消防檢測工具使用教程系列二:數字微壓計
- 作者:消防檢測設備
- 發布時間:2020-06-07 09:32:38
- 來源:http://www.123yhq.com/
- 點擊:717

1.操作前的準備(以某個型號數字微壓計為例,不同型號的微壓計使用方法大同小異)
1)打開儀器背后的電池蓋,裝上一枚9V、DC電池。
2)開機后,儀器進入自檢,自檢完畢LCD面板上顯示“0000”。如果此時顯示的數字不穩定,則表示電池電力不足,必須更換新電池。
2.操作程序
1)打開電源開關,預熱5分鐘。
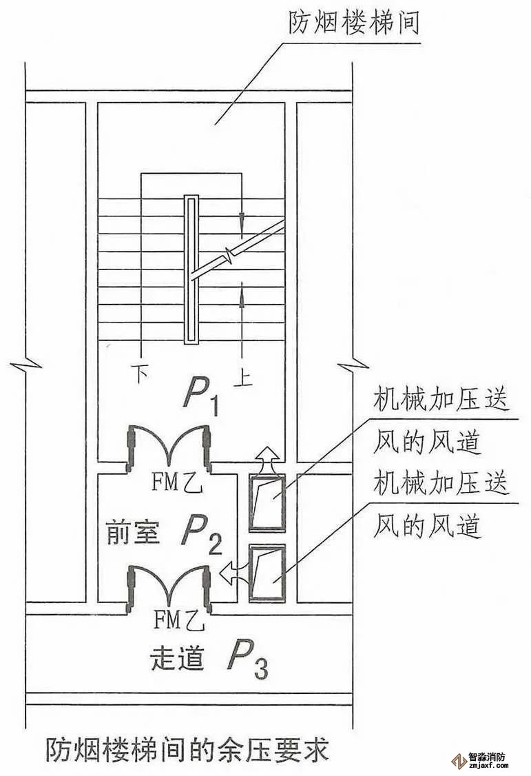
2)用膠管分別連接儀表上的正、負壓接嘴。將接正壓接嘴的膠管的另一端安置在機械加壓風口處,接負壓接嘴的膠管的另一端放置在常壓處。(建筑通常設置加壓送風的部位是樓梯間或者前室,測量時注意保持防火門處于關閉狀態)
3)觀察LCD上顯示的數值,穩定后記錄該測量結果。
4)如果想測量即時值時,可按下儀器側面的“>0<”鍵,這是LCD上會顯示一個穩定的數值,松開“>0<”鍵后儀器又會繼續采樣下去。
5)檢測完畢關機并取出電池,將微壓計放入專用儀器箱。
3.使用注意事項
1)不要過載操作;
2)遠離振動源和強電磁場;
3)測量時應注意避免膠管被擠壓。
4. 維護規程
1)儀器使用完畢應按時歸還儀器管理人員。
2)儀器儲存室應保持干凈、整齊、防塵、防潮。
微壓計在消防設施檢測上的主要應用
防排煙系統機械加壓送風余壓值
1.前室、封閉避難層(間)與走道之間的余壓差應為25Pa?30Pa;
2.樓梯間與走道之間的余壓差應為40Pa?50Pa;

標簽:
- 上一篇:廚房排煙系統改造
- 下一篇:【實例】有碰撞危險場所安裝的噴頭應加設防護




















蘇公網安備32058102002149號
客服QQ